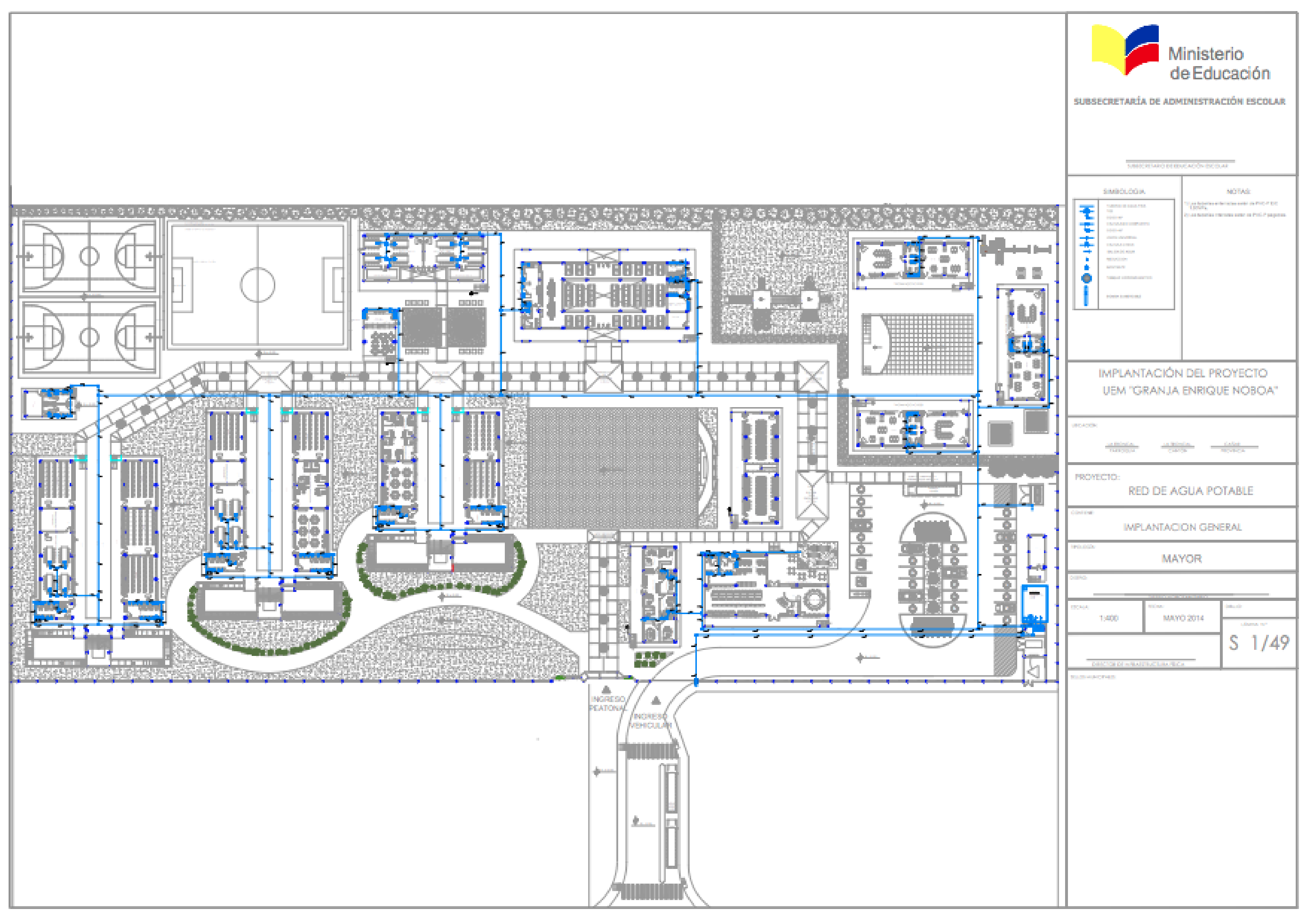
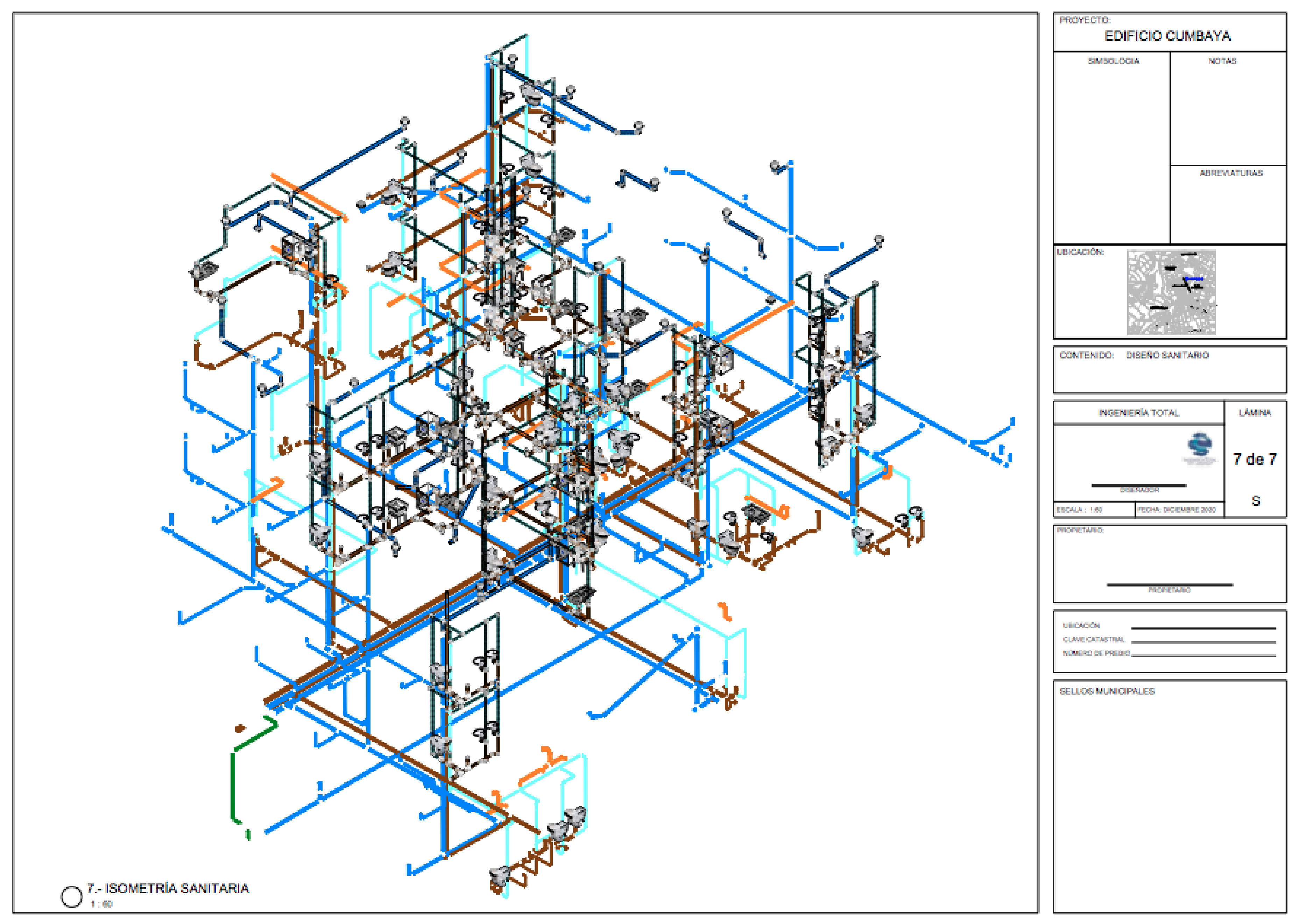
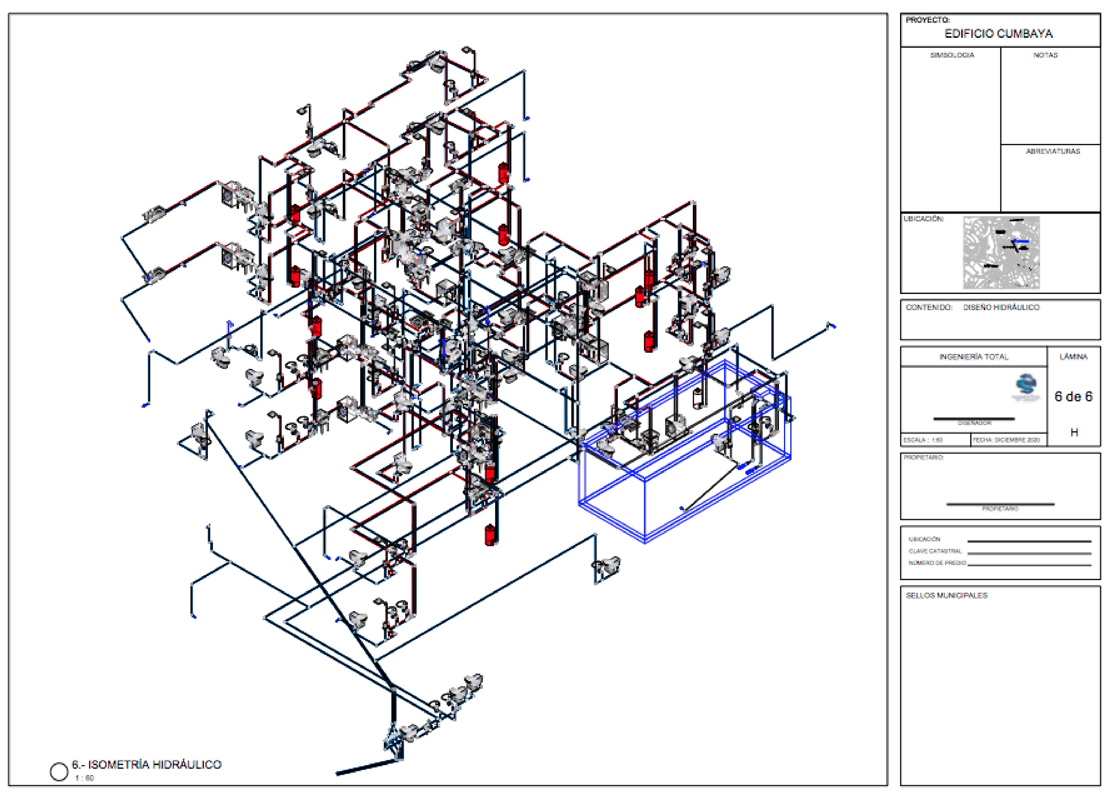
DISEÑOS HIDROSANITARIOS Y SCI